Skip to main content

Omgevingsprogramma voetbalvelden Exloo

Een programma onder de Omgevingswet voor de herinrichting van de  voormalige voetbalvelden in het centrum van Exloo, opgesteld met de inwoners van Exloo. Met daarin de gewenste nieuwe functies en inrichting van het gebied en de maatregelen die nodig zijn om dit toekomstbeeld te bereiken.

Van omgevingsvisie naar programma

In 2023 heeft de gemeente haar Omgevingsvisie BuitenGewoon Borger-Odoorn vastgesteld. De volgende stap in de beleidscyclus is het opstellen van een programma om de ambities uit de visie daadwerkelijk in te vullen.

In Exloo spelen al langere tijd diverse ontwikkelingen en uitdagingen. Vooral in het gebied achter het gemeentehuis. Zo komen daar de voetbalvelden vrij door de verhuizing naar sportpark Odoorn, wordt de invulling van het gemeentehuis heroverwogen en zijn er op piekdagen te weinig parkeerplekken. Ook heeft de gemeente een actuele woonopgave in te vullen. En, er zijn verschillende wensen en initiatieven om ontmoeten en sportvoorzieningen te behouden.

Deze wensen en uitdagingen zijn opgenomen in het programma.

Een programma maak je samen

Het omgevingsprogramma brengt de kansen en opgaven samen. Dit vanuit de eigen ambities voor het dorp, zoals opgenomen in het gebiedskompas ‘De oorspronkelijke Hondsrug’. Het programma vertaalt dat vervolgens naar concrete uitvoeringsprojecten in Exloo, waar inwoner, gemeente en ontwikkelaar morgen mee aan de slag kan.

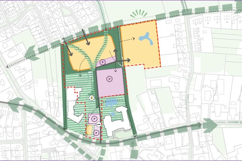
Een programma voor nieuw woongebied waar ontmoeting centraal staat.

Het programma is, zo veel mogelijk, samen met het dorp opgesteld. Er zijn meerdere, druk bezochte avonden georganiseerd waar bewoners mee konden denken over de invulling van het gebied. Dat is gedaan aan de hand van verschillende varianten waar we samen de voor- en nadelen van hebben afgewogen. Dit heeft geleid tot een voorkeursvariant die in het programma is uitgewerkt.

Van programma naar uitvoering

Het eindresultaat is een programma waarin staat wat het doel is: een nieuw woongebied waar ontmoeting centraal staat. Daarbij hoort een schets waarop onder meer aangegeven staat welke functies waar komen en hoe de ontsluiting wordt geregeld.

Ook staat in het programma hoe de verschillende onderdelen gerealiseerd gaan worden, met ‘namen en rugnummers’: het programma benoemt wie verantwoordelijk is voor welk deel van de uitvoering, welke instrumenten worden gebruikt en wanneer het af moet zijn. Concreter kan eigenlijk niet.

Hier lees je meer over het programma onder de Omgevingswet, en over het stappenplan dat we volgden bij dit programma voor Exloo.

  • Projectnaam:
    Omgevingsprogramma voetbalvelden Exloo
  • Uitvoering:
    2024
  • Locatie:
    Exloo
  • Opdrachtgever:
    Gemeente Borger-Odoorn
Deel dit project