Skip to main content

Nieuwe woonwijk Swifterbant-Zuid

Samen met een ontwerpteam van bewoners een ruimtelijke hoofdstructuur en duurzaam stedenbouwkundig plan ontwikkelen voor de woonwijk Swifterbant-Zuid. Speciale aandacht ging uit naar de samenhang met de bestaande wijken van Swifterbant.

Bijzonderheden

Het plan is opgezet met een ontwerpteam van omwonenden en belangstellenden. Samen met hen is de meest wenselijke hoofdstructuur van de nieuwe woonwijk bepaald. Daarbij is goed gekeken naar de uitgangspunten die door de gemeenteraad werden meegegeven. Met het ontwerpteam werden drie denkrichtingen uitgewerkt. Deze zijn (mede doordat COVID fysieke bijeenkomsten onmogelijk maakte) gepresenteerd op een speciaal ingerichte website. Dit project maakt duidelijk dat ook online participatie succesvol kan zijn en tot mooie resultaten kan leiden.

Ben je benieuwd? Hier is de website te bekijken.

Ondersteuning vanuit ons bureau

Onze ontwerpers en projectbegeleiders begeleidden dit project van begin tot eind. Door als eerste stap een ontwerpteam in te richten, was de betrokkenheid vanuit inwoners van Swifterbant groot. Ook politiek was er overeenstemming dat uitbreiding van Swifterbant met deze woonwijk nodig en gewenst is. Toch ontstond er medio 2021 politieke onrust over het plan. Dit heeft te maken met belangen van agrariërs grenzend aan het gebied waar de woonwijk gepland is.

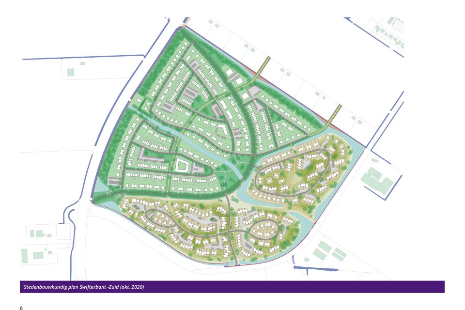
Eindresultaat

De interactieve participatie leidde tot een opdeling van de woonwijk in twee delen. Het noordelijke deel heet ‘in de luwte’ met bosrijke randen in de vorm van windsingels. De bestaande structuur van Swifterbant bood inspiratie. Een brede bosrijke strook ‘omarmt’ de woonwijk als het ware waardoor de wijk letterlijk ‘in de luwte’ van de wind ligt. Het zuidelijke deel heet ‘Rivierduin’ en is gebaseerd op de rivierduinen in de ondergrond en de archeologische vondsten uit de Swifterbantcultuur, waarmee het dorp sterk verbonden is. In ‘Rivierduin’ is dit oorspronkelijke landschap te ervaren en te beleven.

Het plan is in maart 2022 door de gemeenteraad van Dronten vastgesteld. Benieuwd naar het vervolg? We werkten verder aan een defintief ontwerp voor deze week, daarover lees je hier meer.  

  • Projectnaam:
    Stedenbouwkundig plan Swifterbant-Zuid
  • Uitvoering:
    2019 - 2020
  • Locatie:
    Swifterbant
  • Opdrachtgever:
    Gemeente Dronten
Deel dit project