Nieuwe bestemming voor voormalige zandwinning
Doorontwikkeling van een voormalig zandwinningsgebied, toevallig ook de locatie van één van de beroemdste (en goed verborgen) landschapskunstwerken van europa. Dat vraagt om een uitgebalanceerd plan.
Landschap, woningbouw en cultuurhistorie in één plan
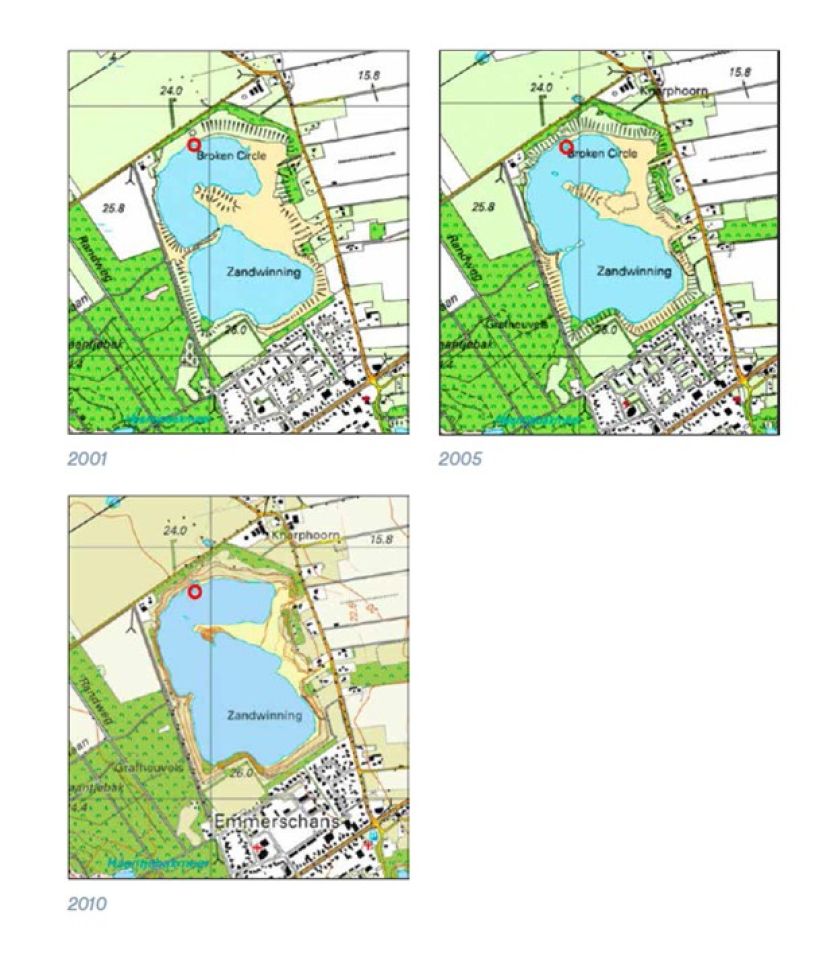
Aan de noordoostkant van Emmen ligt een voormalige zandwinningsplas met een oppervlak van ruim 50 hectare. De zandwinning ligt op de Hondsrug, een langgerekte zandrug die zich van Emmen tot in de stad Groningen uitstrekt. De Hondsrug vormt, samen met een deel van het omringende gebied, het enige geopark van Nederland. De geomorfologische opbouw van de Hondsrug is goed zichtbaar in het landschap. bijvoorbeeld in het opvallende hoogteverschil rondom de plas.
Rondom de zandwinning liggen bospartijen, zandstranden, open weiden en het landschapskunstwerk ‘Broken Circle / Spiral Hill’.
De grondeigenaren zijn samen met BügelHajema Adviseurs, provincie Drenthe en de gemeente Emmen op zoek naar doorontwikkeling van het gebied, waarbij zandwinning, woningbouw en het behoud van het kunstwerk met directe omgeving (landschappelijk en cultuurhistorisch ensemble) centraal staat. Hiervoor is een ontwerpend onderzoek opgestart, waarbij de draagkracht van het gebied (hoeveel mensen kan het gebied aan zonder aantasting van de kunst- en cultuurhistorische waarden) uitgangspunt is.
Collega en projectleider Hermien Kerperien werd over het project geïnterviewd, dat interview kan je hier bekijken.
Wat is The Broken Circle / Spiral Hill
Het kunstwerk ‘Broken Circle / Spiral Hill’ van de Amerikaanse kunstenaar Robert Smithson is gemaakt in 1971 voor een internationale expositie. Het was bedoeld als tijdelijk kunstwerk, maar maakte meteen zo'n indruk dat er al snel stemmen op gingen om het permanent te behouden. Het landschapskunstwerk is inmiddels 50 jaar oud en heeft een grote kunst- en cultuurhistorische waarde. Het trekt bezoekers tot ver over de landsgrenzen.
Bijzonder detail is dat bij de werkzaamheden voor Broken Circle de kunstenaar op een enorm rotsblok uit de ijstijd stuitte. In eerste instantie wilde hij die laten verwijde
ren, de zwerfkei lag in de weg. Maar de betrokken bouwonderneming zag dit als onmogelijk. Uiteindelijk heeft de steen een prominente plek gekregen in het werk.
Naast de cirkel op de grens van water en land ('Broken Circle') creëerde de kunstenaar een tegenbeweging met de ‘Spiral Hill', een opgeworpen heuvel, bedekt met zwarte aarde. Via een spiraalvormig oplopend pad naar de top, ziet de bezoeker vanuit een steeds wisselend gezichtspunt het kunstwerk te beleven.
Behoud van dit kunstwerk, dat jaarlijks onderhouden moet worden om te blijven bestaan, is één van de uitgangspunten van een integraal plan voor dit gebied.
Gebiedsontwikkeling: van visie naar concreet uitwerkingsplan
BugelHajema Adviseurs begeleidt dit proces vanaf het prille begin namens de initiatiefnemers. Inhoudelijke kennis van gebiedsontwikkeling gaat hier samen met strategisch en operationeel handelen en communiceren. Het tijdsbestek van visie- en planvorming tot een concreet uitwerkingsplan met bijbehorend milieu- en onderzoekstraject neemt circa twee tot vijf jaar in beslag.
