Skip to main content

Groenstructuurplan Vlierlanden Ommen

In de Vlierlanden Ommen komen in een groene oase stad en land samen. Hier maken we met de gemeente Ommen een levendige wijk met een natuurlijke uitstraling die naadloos aansluit bij de omringende landschappen.

Vlierlanden: Waar groen en omgeving hand in hand gaan

In Vlierlanden Ommen, waar de gemeente Ommen en BügelHajema samen een groene droom realiseren! Hier in fase 2 wordt niet alleen een wijk gebouwd, maar een levendig stukje natuur waar stad en land elkaar ontmoeten. 

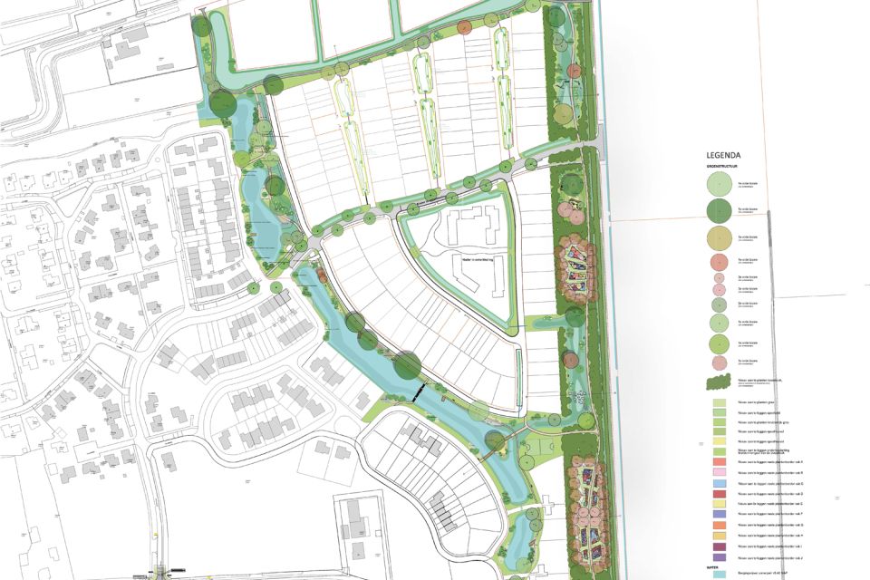
Het beeldkwaliteitsplan is meer dan alleen een ontwerp; het is een visie die gebaseerd is op de wensen van de bewoners en de karakteristieken van het landschap. We hebben ruimte gemaakt voor waterberging, sport en spel, en natuurlijke groenstructuren die naadloos aansluiten bij de omgeving. 

Het omarmt het kleinschalige, groene karakter van de omgeving en vormt de groene longen van het gebied. Een robuust raamwerk van openbare ruimtes, inclusief wegen, water en groen, zorgt voor een klimaatadaptieve wijk die de natuurlijke omgeving versterkt. Met aandacht voor diverse natuurlijke zones en overgangen, creëren we een natuurinclusieve omgeving die een thuis biedt aan een rijke biodiversiteit, waaronder insecten, vlinders, bijen en hommels. Hemelwater wordt op een zichtbare manier opgevangen en afgevoerd, via het wadi systeem. Terwijl de groenstructuur eromheen is ontworpen om robuust en klimaatbestendig te zijn.

Een robuust raamwerk van openbare ruimtes, inclusief wegen, water en groen, zorgt voor een klimaatadaptieve wijk die de natuurlijke omgeving versterkt.

 

Welkom in Vlierlanden; waar (bio)diversiteit bloeit! 

Bij Vlierlanden is geen enkele hoek onbenut gelaten. Onze ontwerpers hebben goed gebruik gemaakt van de bestaande kwaliteiten. In het plan zijn drie unieke deelgebieden ontwikkeld; “Tussen de Vlierlanden”, “De Bosrand” en “Naar de Erven”.

In het gebied 'Naar de Erven', gehuld in een uitgestrekte wadi-structuur, ligt een levendig tapijt van plas-dras vegetatie, aangepast aan zowel natte als droge omstandigheden. Het hart van 'Tussen de Vlierlanden' wordt gevormd door weelderige graslanden en grote boomstructuren, met veel variatie en aandacht voor bijzondere soorten. Terwijl 'De Bosrand' uitnodigt om te dwalen door dichtere begroeiing en verrassende open plekken. Hier ontstaat door wadi's en groene speelelementen een avontuurlijke sfeer.


Het beplantingsplan en het assortiment zijn gericht op robuustheid en toekomstbestendigheid.

Met een zorgvuldige mix van flora stimuleren we een levendige biodiversiteit die elk seizoen boeiend is. Het gebied biedt ruimte aan verschillende soorten vogels, vlinders, insecten en andere dieren. Het eindresultaat van het groenstructuurplan voor Vlierlanden Ommen is een levendig en divers landschap dat de natuurlijke schoonheid van de omgeving omarmt. 

Het eindresultaat van het groenstructuurplan voor Vlierlanden Ommen is een levendig en divers landschap dat de natuurlijke schoonheid van de omgeving omarmt. Vlierlanden staat symbool voor een geslaagde samenwerking tussen gemeente, ontwerpers en natuur, en we zijn trots op het resultaat, dat kan bijdragen aan een bloeiende en biodiverse omgeving voor de gemeenschap van Ommen.

Voor dit project verzorgden we naast het groenstructuurplan ook het stedenbouwkundig plan en een inrichtingsplan voor de openbare ruimte. De juridische verankering vind je in de vorm van een uitwerkingsplan terug op het Omgevingsloket. 

  • Projectnaam:
    Groenstructuurplan Vlierlanden Ommen
  • Uitvoering:
    2023 - 2025
  • Locatie:
    Ommen
  • Opdrachtgever:
    Gemeente Ommen
Deel dit project